Skip to Main Content

Floor Plans

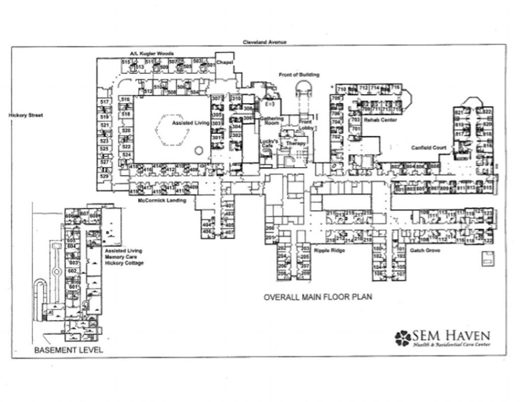
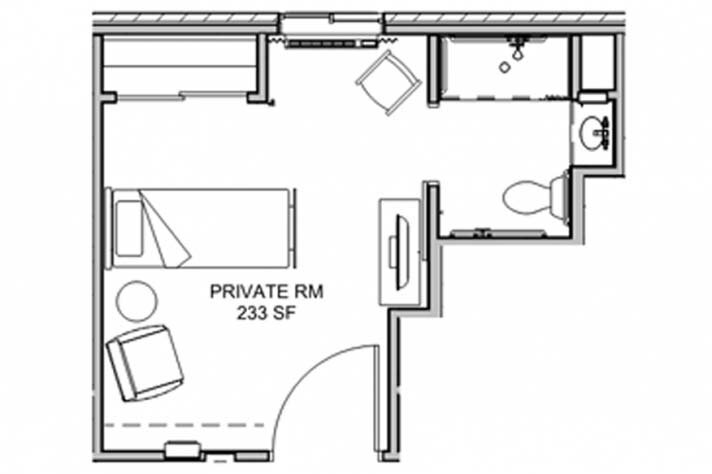
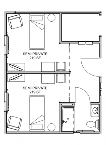
SEM Haven Floor Plans

Below are the floor plans for our assisted living, skilled nursing, private nursing, and semi-private nursing households in Milford. We strive to give our residents the best possible care while facilitating a powerful sense of community and involvement. Browse our floor plans below to get a better understanding of the layouts here at SEM Haven. 

Copied!
^TOP
close
ModalContent
loading gif